Family Sized Home, Ready to Move Into

There is much more than meets the eye with this surprisingly spacious home, set in an elevated Devonport location, just a few minutes' walk from Coles Beach.

The northerly aspect allows for daylong sunlight and brings a beachy feel with the timber floors.

This will suit a larger family or even a work from home option for the buyer who is quick off the mark.

The home offers:

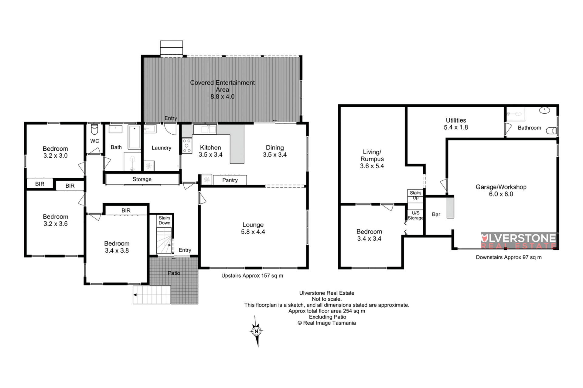
UPSTAIRS

  • Three generous bedrooms with built ins
  • Modern bathroom with separate toilet
  • Big modern kitchen
  • Adjacent dining space
  • Light filled living room - timber floors throughout
  • Easily accessible 8.8m x 4m covered outdoor entertaining area
  • Fenced easy care yard with vehicle access.

DOWNSTAIRS

  • Double bedroom
  • Large, cosy living/rumpus room
  • Loads of storage space
  • Bathroom
  • Double Garage with auto doors

A whole lot of home and value packed.

Arrange for your personal inspection today - this is priced to sell!

Features

Balcony Undercover outdoor area Fenced Granny flat Low maintenance Smoke Alarms Safety Switch Close to beach Built-in wardrobe Air conditioning Floorboards
4 2 4 755 m2
Address 193 Madden St, Devonport
Price SOLD for $550,000
Property Type Residential
Property ID 103
Category House
Land Area 755 m2
Floor Area 254 m2

Agent Details

Craig Heppell photo

Craig Heppell

0400 180 515
View Profile