IT'S TIME TO WELCOME A NEW OWNER

With a rich history dating back to the 1880’s (c1887), WINTERBROOK HOUSE is a fine example of Northwest Tasmania’s pioneering architecture and heritage.


Set on a lush, landscaped and private 1.1 acre block this character filled, showpiece residence is currently operated as a boutique accommodation destination and provides the space to be a secluded residence for urban escapees or a large/extended family.


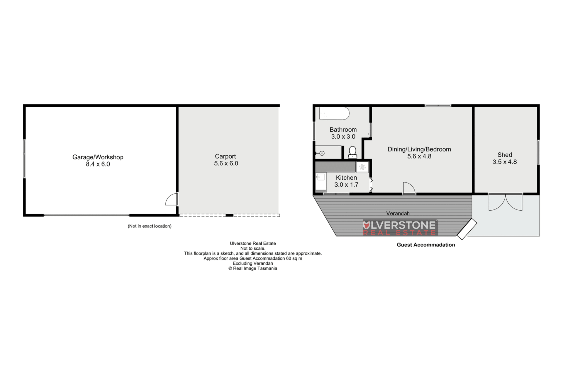
Not only is there four generous bedrooms, three bathrooms, multiple living spaces and two kitchens in the main home, there is a completely separate cottage with kitchen, bathroom and garage - plus covered and open parking spaces for at least ten vehicles.


You also have a grouping of out-buildings which have plans in place (subject to full council approval) to convert into further accommodation, entertainment or even office space.


Wide covered verandahs on the eastern and northern side of the main residence are the perfect setting to host events or private gatherings.


An array of fruit trees, stunning flower beds along with contented Chooks and Ducks complete this tranquil haven.


This stately home is a must see for genuine buyers who can see the massive potential in a fabulous Northwest Tasmanian coastal lifestyle or commercial venture.


And best of all…the location is unmatched! A fifteen-minute stroll to Ulverstone’s shopping and cafe precinct as well as similar distance to beaches and some of the coast’s best schools.


What are you waiting for?


Get in touch to find out more or arrange your personal inspection of this outstanding property.

Features

Verandah Courtyard Fenced Granny flat Smoke Alarms Garage Remote Close to beach Shed/stable Air conditioning Floorboards
5 4 10 4,749 m2
Address 28 Eastland Dr, Ulverstone
Price SOLD for $1,140,000
Property Type Residential
Property ID 89
Category House
Land Area 4,749 m2
Floor Area 312 m2

Agent Details

Craig Heppell photo

Craig Heppell

0400 180 515
View Profile