Views and Value - Priced to Sell!

Built in the early 1970's, this brick home has been in the same family for over fifty years.

Set on a fenced, flat 810sqm block - its solid, its livable and set in an elevated position with an Easterly aspect with sweeping views toward Devonport CBD, The Mersey River and Coastline.

There is no doubt this home could do with some love, so someone with a bit of energy and reno skills can really make the most of this opportunity.

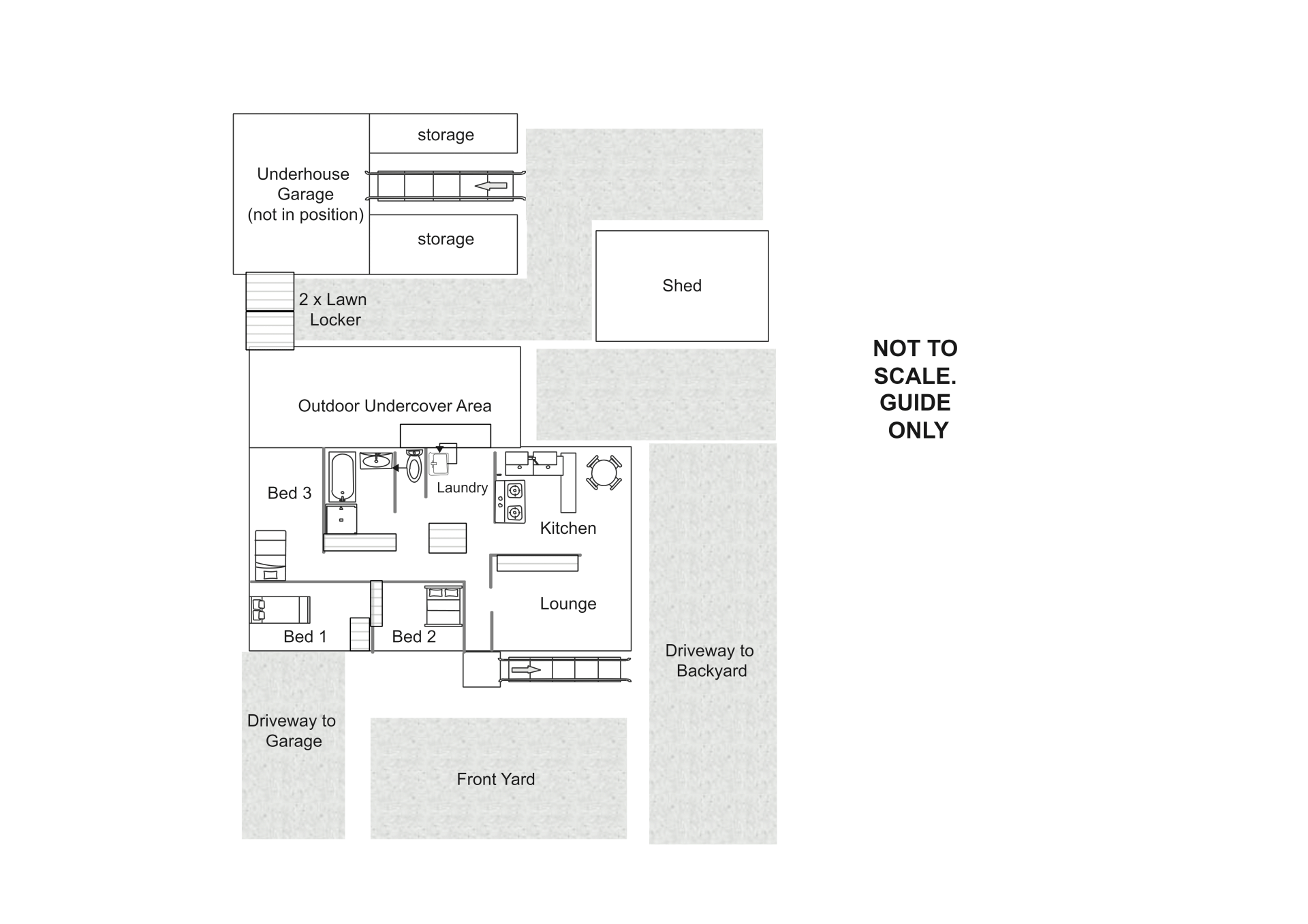
This surprisingly spacious home offers:

  • Three generous bedrooms, two with built ins
  • A functional, fairly modern bathroom with sep. bath and shower
  • Loungeroom attracting maximum light from the easterly aspect
  • Practical, centrally located kitchen with dining area adjacent
  • Sizeable internal laundry
  • Massive outdoor area/carport downstairs off the rear of the home
  • Under home garage and loads of storage - internal stairs
  • Vehicle access to the rear of the block, plus a huge shed.

Only a five-minute drive into the heart of Devonport, literally around the corner from Splash Aquatic & Leisure Centre, walking & bike tracks and dog park, and just a four-minute drive to beautiful Coles Beach.

Want to see it? Ready to buy it?

Call us today!

Features

Outdoor entertainment area Fenced Level Block Close to school
3 1 3 810 m2
Address 33 Watkinson St, Devonport
Price SOLD
Property Type Residential
Property ID 45
Category House
Land Area 810 m2
Floor Area 120 m2

Agent Details

Craig Heppell photo

Craig Heppell

0400 180 515
View Profile