Private Character Home on Half Acre

This charming, and roomy, cottage set on 2147sqm (over half an acre) offers more than you may think.

Yes, the home itself is filled with history and character; Yes, the half acre lot is fenced and gives you oodles of space to play, plant and grow, but...

The potential is there for subdivision (STCA) to make the most of the position and Ulverstone's growing interest from buyers.

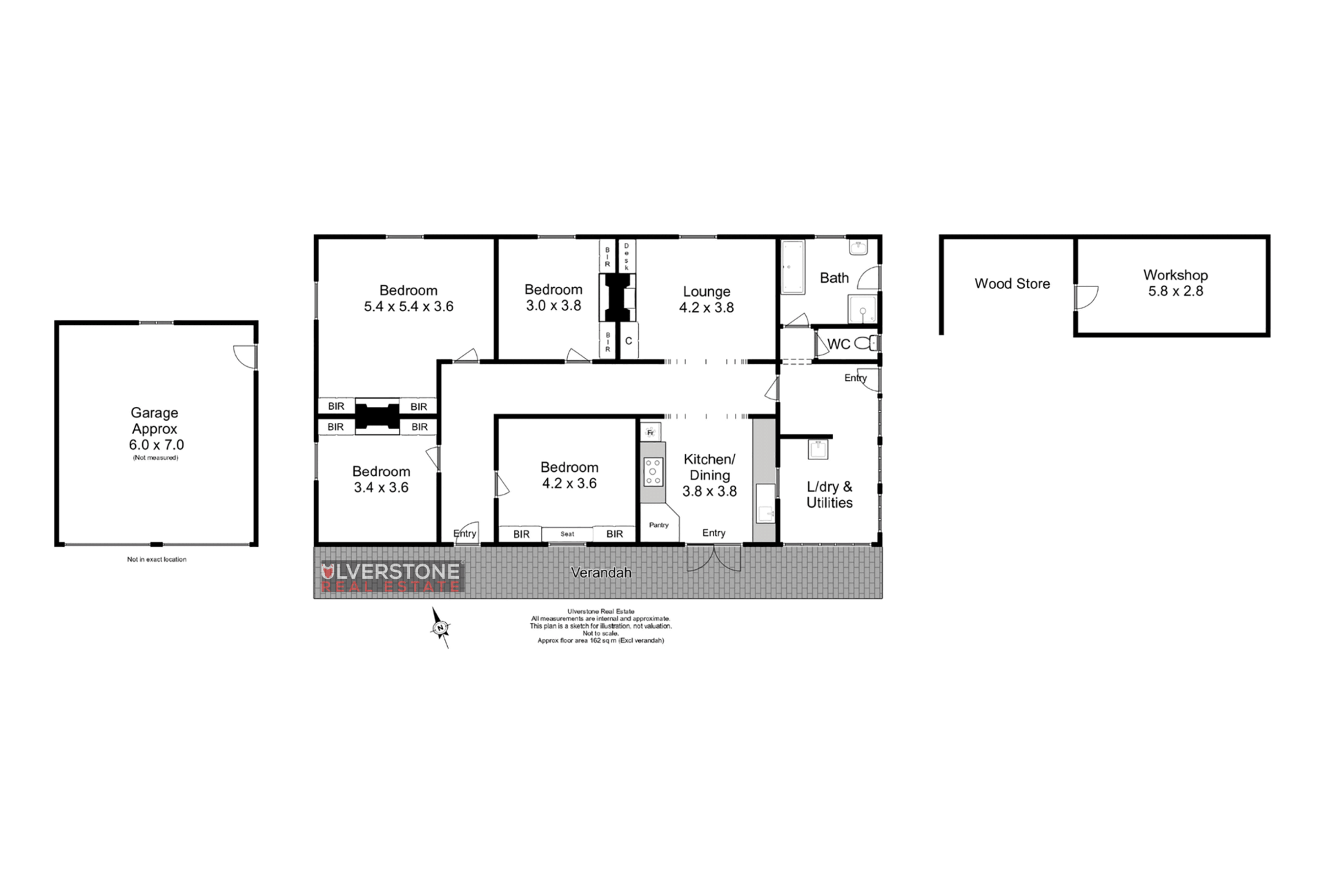
The home comprises:

  • 4 generous bedrooms
  • Gorgeous country style kitchen with impressive range
  • Large Family Bathroom with separate w/c
  • Big utility/mud room with laundry
  • Cosy family lounge area with woodfire heater
  • Covered front verandah
  • Workshop with wood store
  • Double lock up garage

Just a 3-4 minute drive across the Leven river into the heart of Ulverstone or a 15 minute walk; 10 minute walk to the river and an array of parks, and beaches only half a kilometre down the road.

What are you waiting for? Motivated sellers are ready to go!

Call Craig today.

Features

Verandah Fenced Fireplace Broadband Internet Ready Close to school Secure Parking Close to beach
4 1 4 2,147 m2
Address 36 South Rd, West Ulverstone
Price SOLD
Property Type Residential
Property ID 34
Category House
Land Area 2,147 m2
Floor Area 162 m2

Agent Details

Craig Heppell photo

Craig Heppell

0400 180 515
View Profile