Stylish, Spacious Generational Living - Almost 1 Acre

Grand and Impressive.

Only built in 2007, this stylish, modern home is designed to cater to a range of potential lifestyle opportunities.

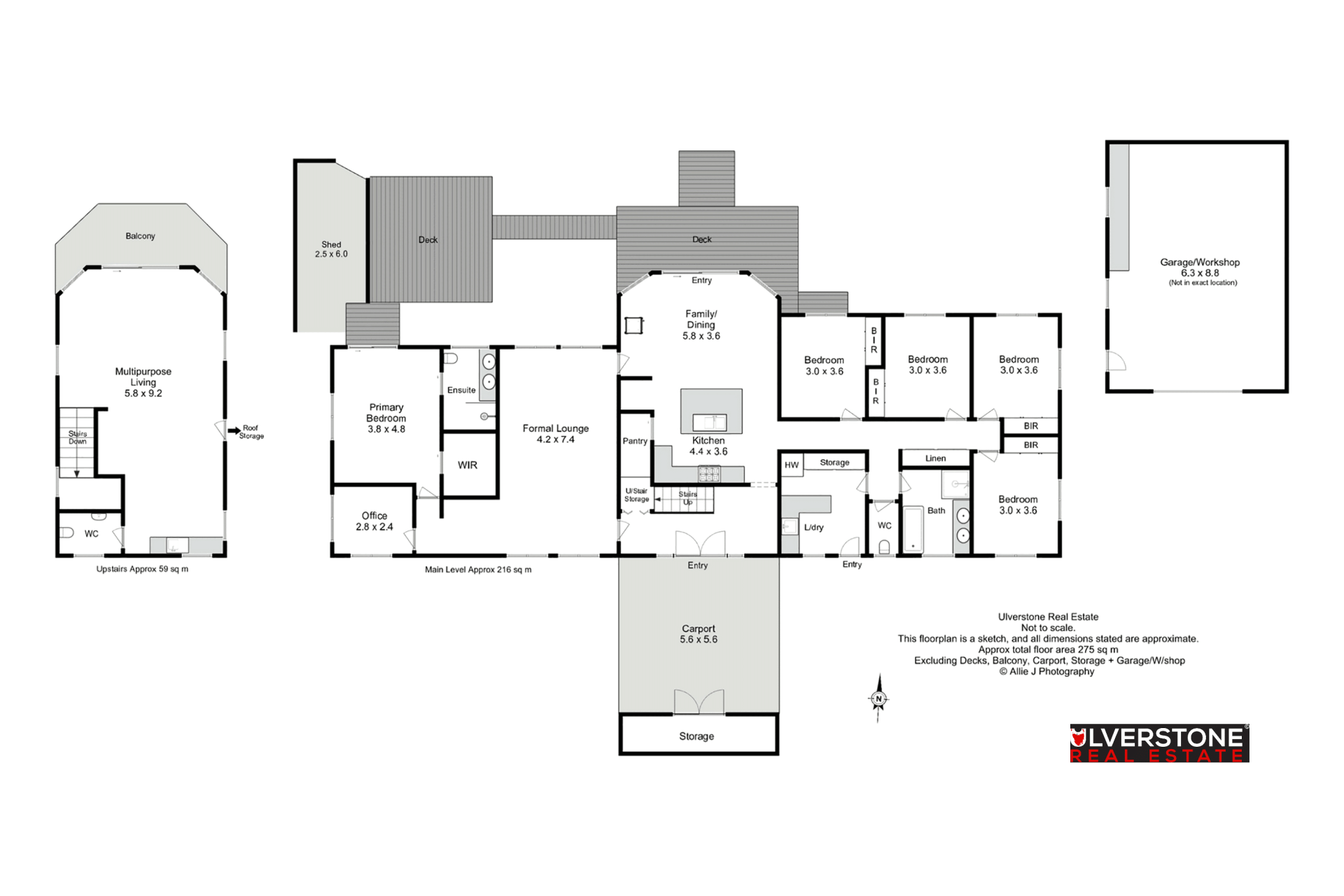
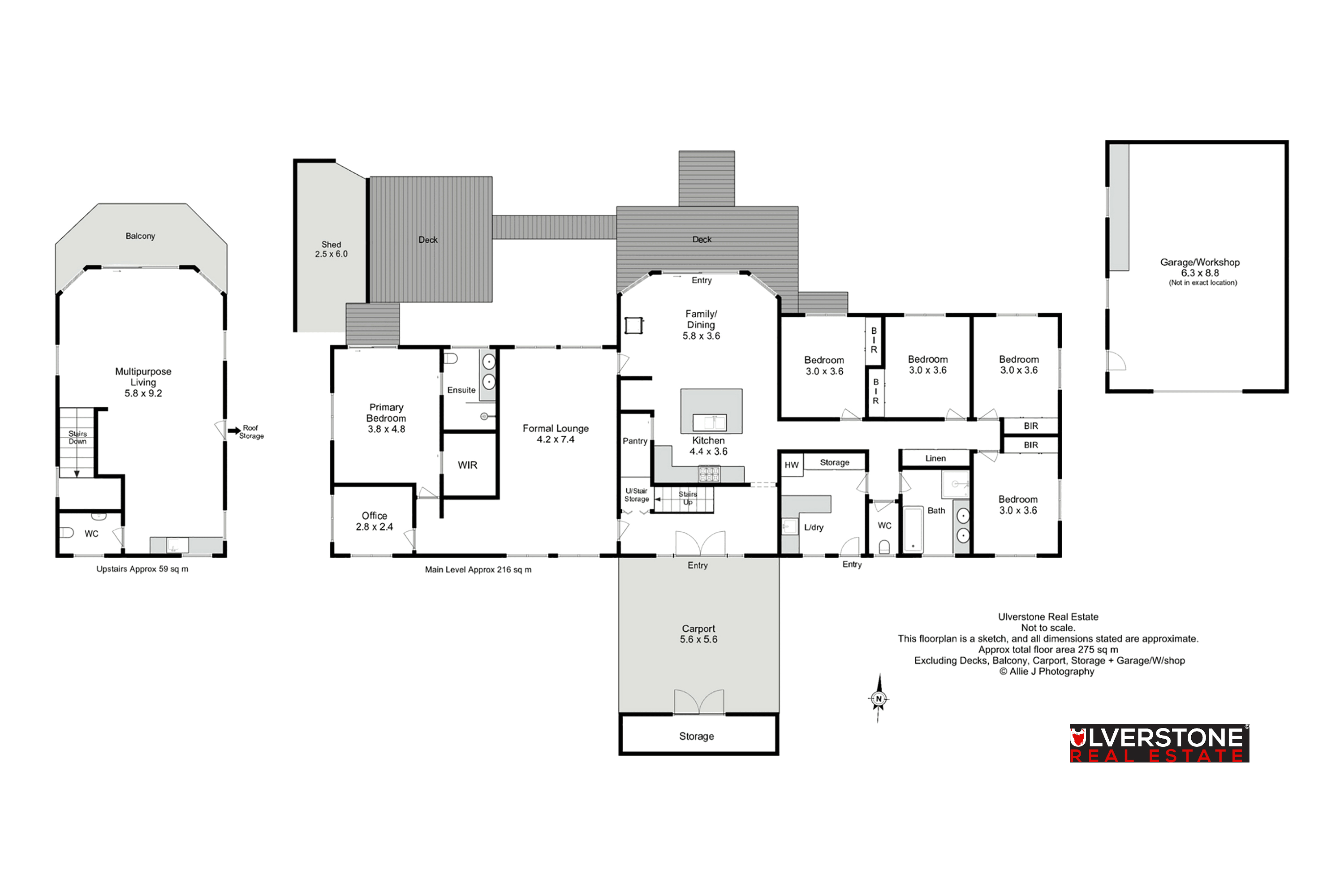
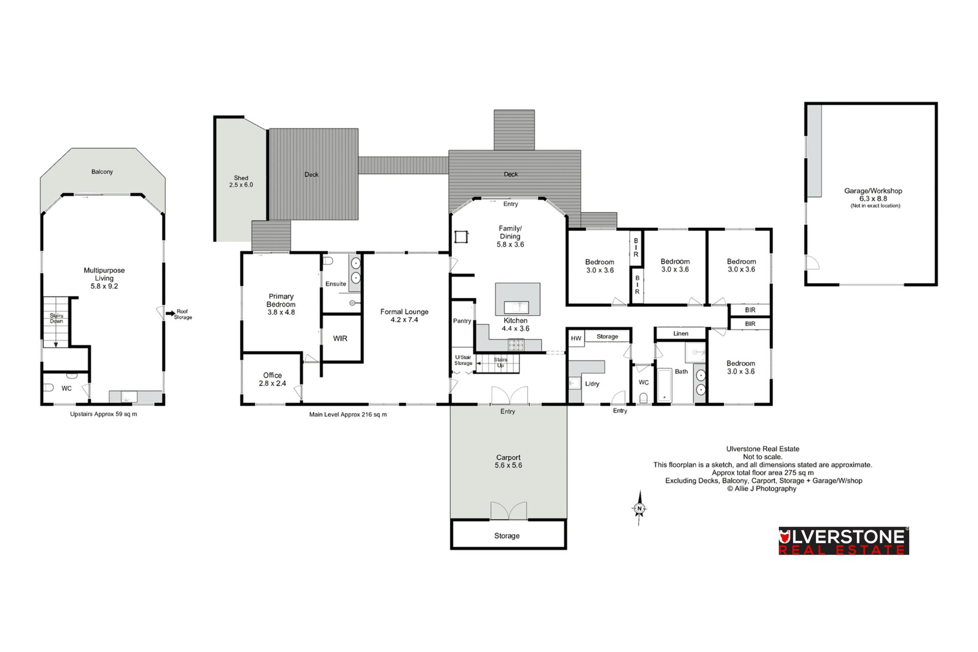
Over 275sqm of varied living space - perfect for a growing family, extended family or even a work from home option.

This splendid home offers...

GROUND FLOOR:

  • 5 oversized bedrooms including a primary bedroom with walk in robe and amazing ensuite.
  • Study/Office
  • Substantial formal lounge room
  • Large open kitchen with timber finishes and modern gas cooker
  • Family/dining space off the kitchen which leads out to open deck area.
  • Double Carport which allows access to the grand entry way. 
  • Modern Family Bathroom
  • Massive Laundry/Mudroom.

UPSTAIRS:

  • Incredible 9.2m x 5.8m open living area which could function as a parents' retreat, games room or office/studio
  • Balcony taking in ocean views
  • Kitchenette
  • WC/Restroom
  • Access to roof cavity which could convert into further useable space.

All set on a 3971sqm block (just shy of 1 acre) with lawns, garden beds and garden shed.

Also, there is an 8.8m x 6.3m shed/workshop with above average clearance for a van or large 4x4.

Easy access to the Bass Highway, roll down the hill into Penguin Township and beaches, around the corner to schools, Golf Club, bike tracks...an amazing location.

This home epitomizes what the Northwest Coastal lifestyle is all about.

Get in touch to arrange your personal inspection. 

*Please note that furnishings depicted have been digitally added for display purposes only.

Features

Balcony Deck Outdoor entertainment area Fenced Low maintenance Safety Switch Smoke Alarms Ocean views Close to school Built-in wardrobe Workshop Dishwasher Fireplace
5 2 6 3,971 m2
Address 76 South Rd, Penguin
Price From $950,000
Property Type Residential
Property ID 121
Category House
Land Area 3,971 m2
Floor Area 275 m2

Inspections

  Saturday 1 November 10:00 AM - 10:30 AM

Agent Details

Craig Heppell photo

Craig Heppell

0400 180 515
View Profile